EI60 90° bend for PLCS D060810 fire protection duct

Item no. 7217880 | EAN 4012196836680

Product description
Product description
90° bend for PYROLINE® Con S EI60 fire protection duct, type PLCS D060810, consisting of fibreglass light concrete which is resistant to water and frost for the creation of horizontal changes of direction in the duct. Mounted connectors ensure quick mounting in situ, whilst loosely placed covers ensure quick inspection and reassignment.

Including connection screws and sealing strips.
  • Communautés Européennes, EC declaration of conformity according to EC directives
Technical data

Technical data

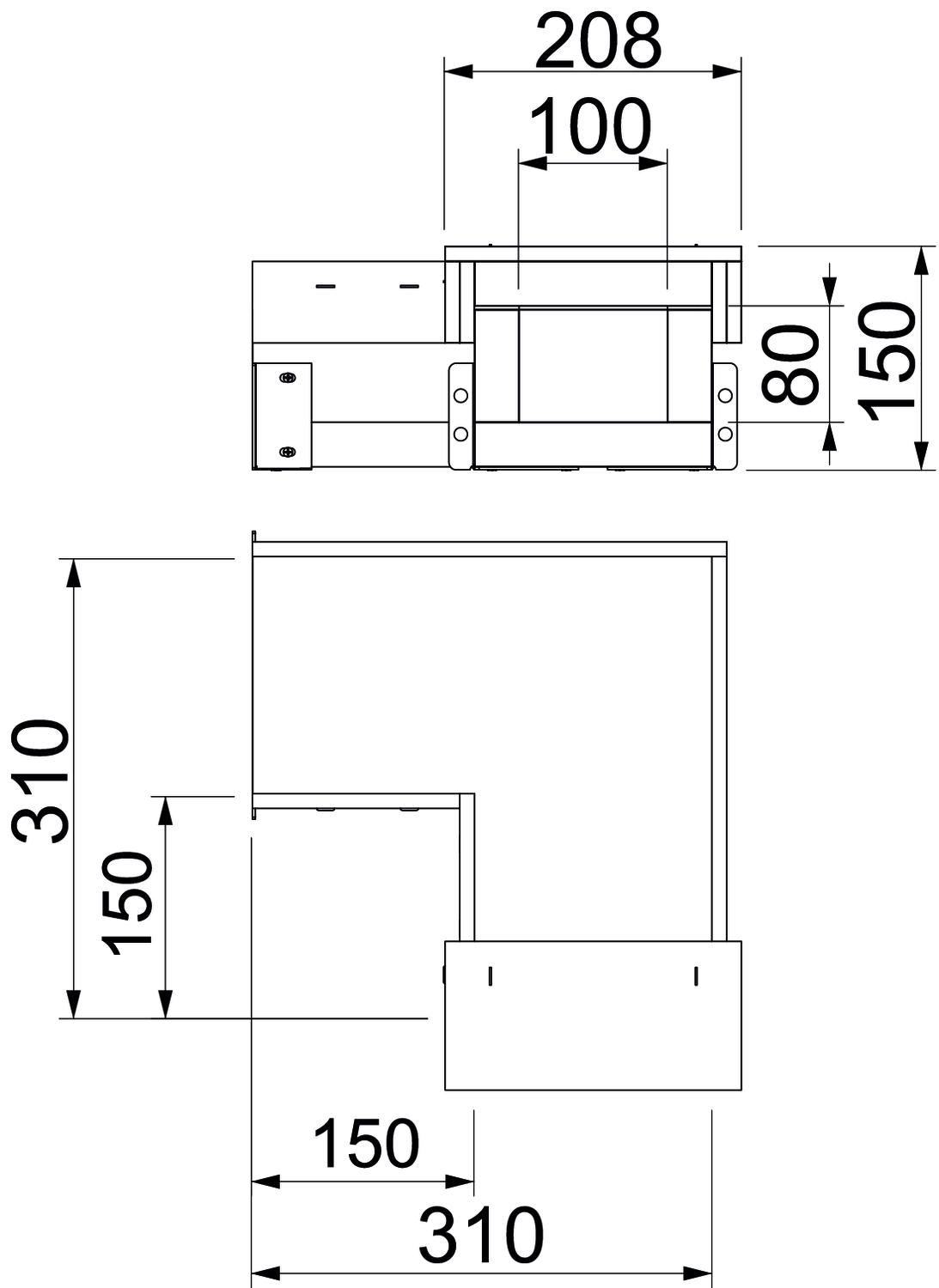
Angle of the bend 90 °
Classification EI − installation duct 60
Colour Grey
Cover fastening Loose
Dimension 100x80
Dimension B 208 mm
Dimension b 100 mm
Dimension h 80 mm
Dimension H 150 mm
Dimension L 310 mm
Jacketing Without
Material Fibreglass lightweight concrete
Material of the insulation Glass-fibre lightweight concrete
Number of flammable sides 4
With perforation no
All types

All types

Types Dimension B Dimension b Dimension H Dimension h Dimension L Item no. Quantity SSU
PLCS B060810 208 mm 100 mm 150 mm 80 mm 310 mm 7217880
1 piece
PLCS B061220 308 mm 200 mm 190 mm 120 mm 410 mm 7217884
1 piece
Downloads

Download

EU declaration of conformity PLCS B060810 / 7217880 , 0.11MB , pdf
Download
Declaration of performance PLCS B060810 / 7217880 , 0.31MB , pdf
Download

No invitation to tender text is available for this product.