Note: This article is discontinued.

End piece for PYROLINE® Con D BSK I90/E30 fire protection duct

Item no. 7215252 | EAN 4012195430384

Grey
Product description
Product description
End piece for PYROLINE® Con D BSK EI90/E30 fire protection duct, consisting of fibreglass lightweight concrete which is resistant to water and frost for closing the duct ends.

Including countersunk head screws and stuck-on sealing strip.
  • Fire protection duct for wall mounting
  • Fire protection duct for ceiling mounting
  • Fire resistance class I90
  • Function maintenance class E30
Technical data

Technical data

Colour Grey
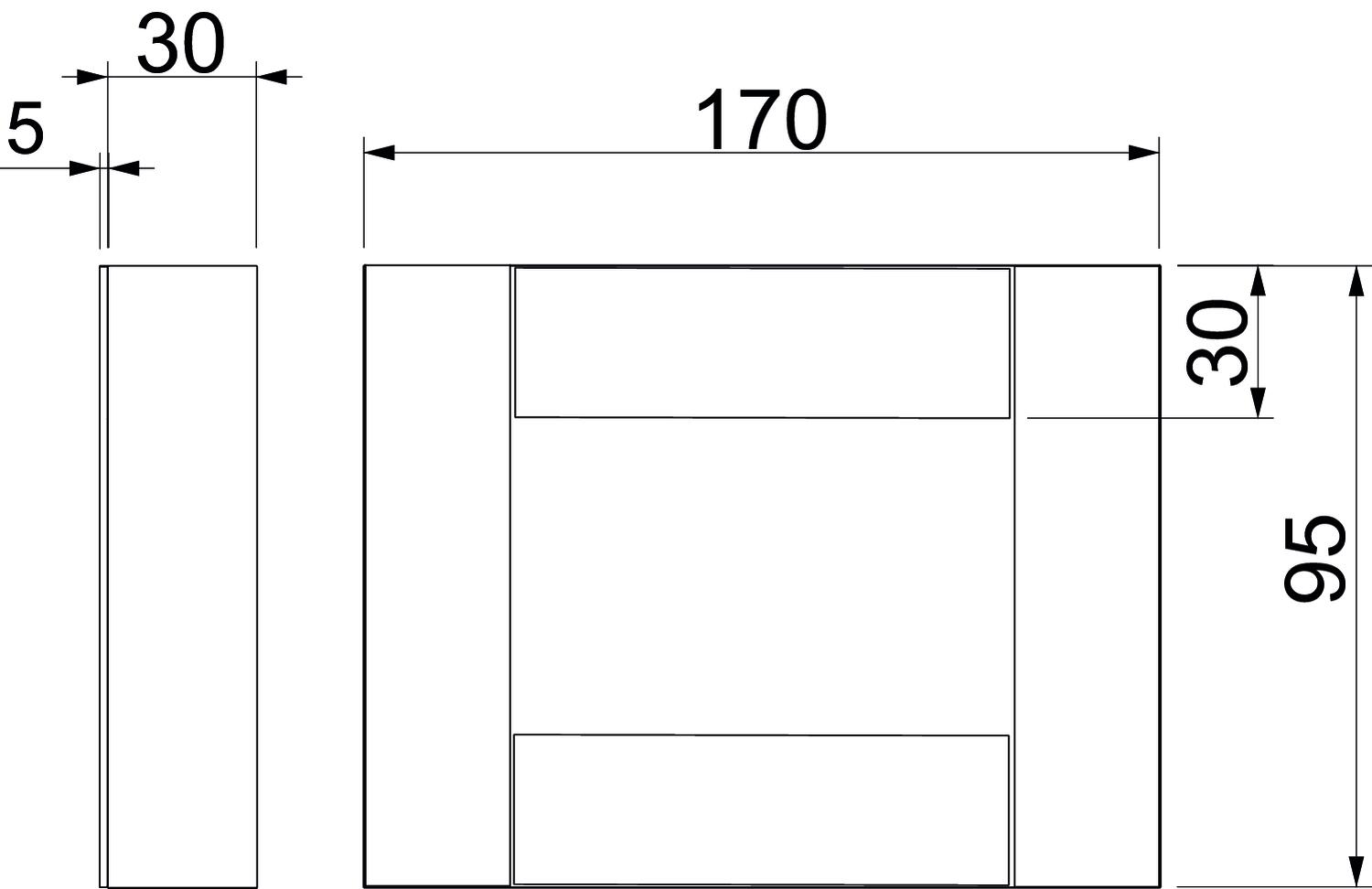
Dimension 50x110
Dimension A 30 mm
Dimension B 170 mm
Dimension H 95 mm
Dimension L 30 mm
Fire resistance class E − function maintenance 30
Fire resistance class I − installation duct 90
Height 95 mm
Jacketing Without
Length 30 mm
Material Fibreglass lightweight concrete
Material of the insulation Glass-fibre lightweight concrete
Number of flammable sides 3
Version for Left/right
Width 170 mm
All types

All types

Types Dimension B Dimension H Colour Item no. Quantity SSU
BSK-E090506 120 mm 95 mm Grey 7215250
1 piece
BSK-E090511 170 mm 95 mm Grey 7215252
1 piece
BSK-E090521 270 mm 95 mm Grey 7215254
1 piece
BSK-E091026 320 mm 150 mm Grey 7215258
1 piece
Downloads

Download

Download

No invitation to tender text is available for this product.